Apresentação:
Este manual para as máquinas Khrin de produção de paperpots / biopot, que são cilindros de material degradável preenchidos com substrato para propagação vegetal, fornece informação completa a respeito da aplicação diária, trabalho e segurança da máquina, bem como de qualquer limitação.
O manual é composto por uma introdução, a qual descreve a segurança geral e aplicação da máquina, bem como as seções relacionadas aos dispositivos eletromecânicos e funcionamento dos módulos individuais.
Aplicação:
As máquinas Khrin são projetadas para a produção de paperpot / biopot nos quais o meio de ver úmido e constituído por substratos a base de turfa, fibra de coco, casca de pinos, ou mistura deles, com a adição de casca de arroz, fertilizante, perlita e outros meios sólidos de baixa granulometria.
Se outros produtos forem utilizados ou se produtos químicos forem adicionados, é responsabilidade do cliente assegurar que a produção não causará nenhum inconveniente ao operador e à máquina.
Segurança:
Você não estará pronto para operar a máquina até que tenha lido e entendido os tópicos em relação à segurança. Leia todo o manual, incluindo as seções sobre os sistemas eletromecânicos e funcionamento dos módulos da máquina – você encontrará informações específicas em relação à segurança.
Esse símbolo de segurança indica que a seção em questão trata de risco pessoal. As palavras “perigo”, “aviso” e “cuidado” indicam o grau de cuidado. Se as instruções não forem seguidas cuidadosamente, podem levar à ferimentos e/ou prejuízo à propriedade.
Os sinais abaixo podem ser colocados na máquina para explicar o risco de não prestar atenção à segurança.




Funcionamento da máquina
Quando o botão Ligar é pressionado, a máquina inicia o ciclo de funcionamento ligando os dispositivos elétricos e pneumáticos, estando pronta para o início da produção dos Biopots. Pressionando novamente o botão Ligar a máquina inicia o ciclo de produção.

Processo de Funcionamento
A cuba de alimentação é constituída por uma calha de escoamento na qual o substrato é abastecido. No fundo da calha de escoamento está um agitador vertical para prevenir que o substrato se acumule na placa com o furo do tubo de alimentação e ao longo da calha de escoamento.
O papel ao redor do tubo de alimentação é puxado para a câmara de vácuo por meio de uma unidade de tração. Antes que o papel atinja a câmara de vácuo, ele é dobrado ao redor do tubo de alimentação e colado, transformando-se numa “mangueira”. Devido ao vácuo feito na câmara de vácuo, a mangueira de papel é preenchida com o substrato do tubo de alimentação e é gradualmente puxada através da unidade de tração e para a lâmina de corte, a qual corta os cilindros nos comprimentos configurados.

Segurança
A lâmina de corte está protegida e quando aberta a proteção a energia é interrompida no disjuntor principal, há um dispositivo de segurança adicional, instalado na caixa onde a lâmina de corte está situada. Como uma característica adicional de segurança, essa chave cortará a energia e interrompendo funcionamento da máquina quando se abre a porta desta caixa.

A parada de emergência, situada na botoeira principal, para o funcionamento da máquina no caso de alguma eventualidade.

Descrição do local de trabalho

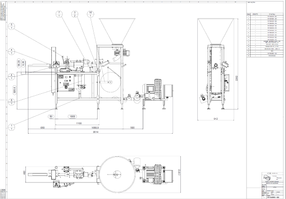
Normalmente, o operador estará na área tracejada em torno da máquina
Layout e Consumo

Normalmente, o operador estará na área tracejada em torno da máquina
Caixa de controle:
Uma caixa com ligar, parar e parada de emergência está posicionada acima da perna anterior esquerda.
Iluminação:
Uma iluminação adequada deve estar presente acima da máquina para possibilitar ao operador uma caminhada segura na área de trabalho.
Nível de ruído:
O nível de ruído da máquina está abaixo de 70 dB.
Dados técnicos Importantes antes de ligar a máquina
Tópico | RR-1C-1RR-1C-15/80 |
Comprimento (mm) | 3615 |
Largura (mm) | 912 |
Altura (mm) | 2262 |
Diâmetro do Kit (mm) | Ø15 – Ø80 |
Peso total (kg) | *175 |
Consumo de ar (l/min) | 260 |
Pressão atmosférica (bar) | 6 |
Consumo (kWh) | |

É importante verificar se a voltagem da máquina e a voltagem da rede estão em concordância com as especificações do equipamento antes de conectar à máquina na rede elétrica.
A voltagem padrão da máquina é de 220V Trifásico 60Hz.
Se as partes foram desmontadas antes do transporte, as porcas e parafusos serão colocados nos pontos onde as partes serão montadas.
Layout padrão da montagem da máquina


A bomba de vácuo tem quadro elétrico próprio e os cabos devem ser conectado no quadro elétrico da máquina. Os cabos de energia 220V Trifásico devem ser conectados ao quadro elétrico da máquina.
Conexão do ar comprimido

O Máquina Khrin requer ar seco para a obtenção de um ótimo resultado e garantia dos componentes pneumáticos. Se o ar comprimido não está 100% seco, recomendamos o uso de um secador de ar que deverá ser montado na linha de ar entre o compressor e a máquina.
Ajuste do tubo de alimentação:

Ajuste do tubo de alimentação na câmara de vácuo

A posição do tubo de alimentação na câmara de vácuo deve estar centralizado, para que o papel deslize suavemente e não rotacione ao longo do tubo. Para fazer o alinhamento se ajusta a posição através dos parafusos A e B.

Instruções de operação
Ajuste da posição do componente de aquecimento
Ajuste da temperatura de selagem
Os diferentes tipos de papel requerem diferentes temperaturas para obter uma colagem efetiva – a temperatura é indicada na etiqueta colada nos rolos de papel. Se ocorrerem problemas com a colagem, fazer um ajuste para cima ou para baixo de até 20oC, ajustando-se o termômetro de 5 em 5oC.
Verificação do alimentador de papel, passagem do papel e início operação
Procedimento:
Tabela de Recomendação de manutenção
Para ter uma máquina que funcione sempre bem, é importante fazer a sua manutenção regularmente. Quando uma nova máquina é colocada em serviço, os parafusos das partes móveis, em especial, irão se acomodar. Portanto, é importante apertá-los quando a máquina foi instalada recentemente.
| Intervalos de tempo | |
Partes que necessitam de manutenção | Primeira vez | Subsequentemente |
Lubrificação dos suportes de rolamento lâmina | 8 horas | 8 horas |
Limpeza do componente de aquecimento e do tubo de alimentação | 8 horas | 8 horas |
Esvaziamento do filtro de vácuo da bomba de vácuo | 40 horas | 40 horas |
Limpeza da saída do substrato no alimentador | 4 horas ou quando necessário | 4 horas ou quando necessário |
Esvaziamento do separador de água | Quando necessário | Quando necessário |
Substituição da vedação na câmara de vácuo | 1/2 – 1 milhão paperpots / biopot produzidos | 1/2 – 1 milhão paperpots / biopot produzidos |
Substituição das lâminas | Quando necessário | Quando necessário |
Lubrificação da guia de rolamento da unidade de lâmina
Os suportes de rolamento (A) e (B) devem ser lubrificados levemente com óleo.
Limpeza do componente de aquecimento e do tubo de alimentação
Se a colagem está aderindo ao componente de aquecimento (A), ela pode ser removida com lixa de papel ou com uma faca. Limpe a extremidade do tubo de alimentação (B). Usar fita antiaderente teflon para evitar que grude material no elemento de aquecimento.
Limpando a caixa de vácuo da bomba de vácuo troca do filtro
A poeira da caixa de vácuo deve ser removida regularmente. O filtro de vácuo possui um pequeno saco de pó; o filtro e o saco devem ser separados e limpos. Monte novamente o filtro de vácuo. (Para intervalo de esvaziamento, consulte o plano de manutenção).
Esvaziamento do separador de água
O sistema Khrin requer ar seco para a obtenção de alto rendimento e maior vida útil dos componentes pneumáticos da máquina. Se o ar comprimido não está suficientemente seco, um secador de ar deve ser montado na linha de ar entre o compressor e a máquina.
Verificar periodicamente se o regulador/separador de ar comprimido não apresenta água residual, caso seja necessário esvazie.
Esvazie o separador de água através da abertura do parafuso de drenagem abaixo da válvula. Esvazie o recipiente completamente.
Teste do ar comprimido
A: Válvula para a unidade de tração, C1.
B: Válvula para a câmara de vácuo, C2, C3, C4.
C: Válvula para a lâmina, C5.
D: Teste o botão pressionando-o. As funções do ar comprimido podem ser testadas individualmente.
E: Ajuste da quantidade de ar (ajuste da velocidade do cilindro, aumentando ou diminuindo a vazão de ar).
Obs.: o ar sistema de ar deve estar conectado a linha
Substituição da vedação na câmara de vácuo
Ao substituir as vedações, certifique-se que foram substituídas em ambas as partes superior e inferior desparafuse as três porcas (A) em ambas as extremidades da câmara de vácuo (parte superior e inferior).
Remova as vedações antigas (B) e (D).
Coloque as novas vedações (B) e (D).
Recoloque as porcas (A) em ambas as extremidades da câmara de vácuo.
A borracha esponjosa (C) deve ser substituída cada duas vezes.
Substituição da lâmina / faca
Procedimento:
Ajuste do comprimento do paperpot / biopot
Procedimento:
Ajuste do tubo da lâmina de corte
Desconecte a alimentação de energia pressionando o interruptor principal da máquina.
Desmontar a proteção da faca.
Remontar a proteção da faca.
No caso de lâmina dupla, posicione o espaçador entre as duas lâminas. As lâminas devem ser montadas com as buchas espaçadoras a fim de manter o ajuste abaixo do ponto A-B-C.
Ajuste da pressão de vácuo, passo e velocidade de produção
Ajuste da pressão de vácuo:
Ajuste do passo e velocidade:
Substituição da placa com furo para o tubo de alimentação para regular a vazão do substrato dependendo de sua gramatura
A placa com furo (A) é substituída desmontando-se os 2 parafusos (C). Agora, a placa com furo pode ser removida e uma nova pode ser colocada. Monte novamente os parafusos (C). A placa (B) é a placa mais baixa com o tubo de alimentação ligado nela.
A placa com furo (A) deve ser trocada por uma com menor diâmetro caso a vazão de substrato seja muita, isto pode causar entupimento do tubo de alimentação ou de forma oposta, caso a vazão seja pequena comprometendo a velocidade de enchimento do paperpot / biopot, a mesma deve ser trocada por uma de diâmetro maior.
Lista de solução de problemas
A lista abaixo fornece alguns exemplos para a razão do problema em questão e de como solucioná-lo. Como a máquina está sob contínuo desenvolvimento, por favor, leve em conta que pode haver outros motivos além daqueles mencionados na lista.
Problema | Causa possível | Solução |
Pouco preenchimento do cilindro de turfa | Bloqueio da saída do tubo devido a pedaços de madeira, pedra, metal, etc.
| Limpe a caixa de rolamentos (consulte “limpeza da caixa de rolamentos e cuba de alimentação”) |
Os cilindros não estão cortando satisfatoriamente | Lâminas de serra defeituosas | Substitua as lâminas de serra (consulte “substituição das lâminas de serra”) |
Colagem insuficiente do papel
| Cola no componente de aquecimento e no tubo de alimentação.
O componente de aquecimento/tubo de alimentação necessita de ajuste.
A temperatura está muito baixa. | Limpe o componente de aquecimento e tubo de alimentação (consulte “limpeza do componente de aquecimento e do tubo de alimentação”). Ajuste o componente de aquecimento e o tubo de alimentação (consulte “ajuste da posição do componente de aquecimento”).
Ajuste a temperatura (consulte “ajuste da temperatura de colagem”). |
Dissonâncias da unidade de lâmina | O freio do cilindro necessita de ajuste.
Lâmina defeituosa. | Ajuste o freio da unidade de lâmina. Substitua a lâmina (consulte “substituição da lâmina”). |
Dissonâncias da cuba de alimentação | Bloqueio da saída do tubo devido a pedaços de madeira, pedra, metal, etc. | Limpe o alimentador.
|
A máquina para enquanto a bomba de vácuo e a cuba de alimentação continuam trabalhando | Os contatos posição na unidade de lâmina não sinalizam.
Os contatos posição da unidade de tração não sinalizam. | Ajuste os contatos posição; substitua-os se necessário (consulte “a máquina para”) |
Av. Marquês de São Vicente, 446 – sala 509.
Várzea da Barra Funda, São Paulo – SP
R. Otto Frederico Bürguer, 274
Jardim Alvorada – Limeira/SP